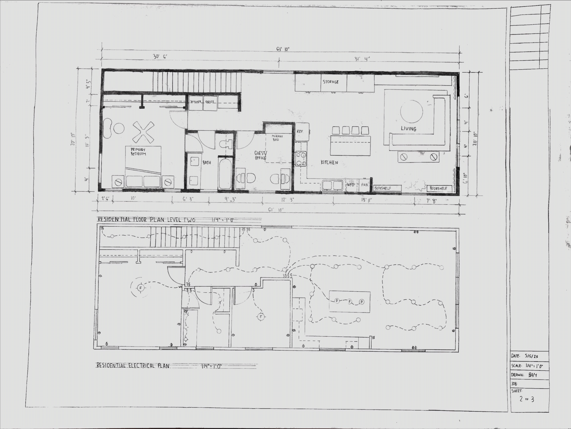
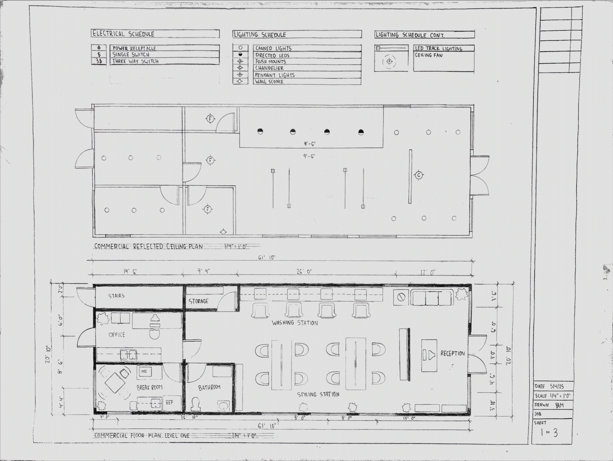
HAND DRAFTINGCOMMERCIAL SALON AND 2 BEDROOM APARTMENT ELEVATIONS COMMERCIAL FLOOR PLAN AND RCP RESIDENTIAL FLOOR PLAN AND ELECTRICAL PLAN